Bebauungspläne für Gewerbegebiete
In Ringsheim gibt es fünf bestehende, klassische Gewerbegebiete:
„Oberfeld“
Das Gewerbegebiet „Oberfeld“ wird durch den größten Arbeitgeber im Ort, die Fa. Simona AG, geprägt. Aber auch weitere kleinere Betriebe sind hier, an der südlichen Gemeindegrenze unmittelbar an der Rheintalbahnstrecke, vertreten. Leider gibt es dort derzeit keine freien Gewerbeflächen.
„Leimenfeld“
Im Gewerbegebiet „Leimenfeld“ finden Sie verschiedenste Betriebe mehrerer Branchen. Das Gebiet befindet sich westlich der Rheintalbahnstrecke zwischen der östlichen Seite der Umgehungsstraße B3 und dem Bahnhof „Ringsheim/Europa-Park“. Leider gibt es dort derzeit keine freien Gewerbeflächen.
„Leimenfeld II“
Im Bereich westlich der Umgehungsstraße B3, unmittelbar an der Autobahnausfahrt befindet sich das Gewerbegebiet „Leimenfeld II“. Das Gebiet wird neben einer Tankstelle dominiert von Betreiben des Beherbergungsgewerbes / Hotels.
Mit der 4. Teil-Änderung des Gewerbegebietes „Leimenfeld II“ wurde ein Teil des Gebietes zum „Sondergebiet für Tourismus“, in den anderen Bereichen sind auch kleinere Gewerbe- und Handwerksbetriebe angesiedelt. Leider gibt es dort derzeit keine freien Gewerbeflächen.
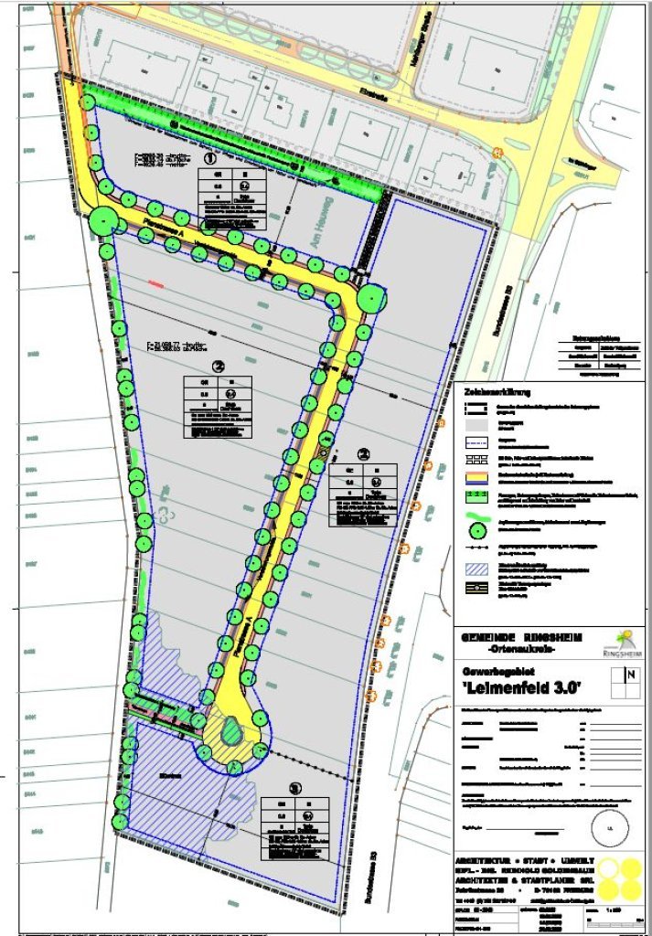
"Leimenfeld 3.0" mit Erweiterung „Leimenfeld 3.0A5“
Südlich des Gewerbegebiets „Leimenfeld II“ liegt das Gewerbegebiet „Leimenfeld 3.0“ sowie die derzeit letzte Erweiterung „Leimenfeld 3.0A5“. Spatenstich war zunächst 2021, die Erweiterung wurde 2025 umgesetzt. In beiden Gebieten dominieren klassisches Gewerbe, kleine Handwerksbetriebe sowie Dienstleistungsfirmen. Einige Flächen sind hier noch zu erwerben.
Darüber hinaus gibt es in der Ortslage weitere, starke örtliche Betriebe.



